
【築浅RC×ネット無料】糀谷駅|賃貸マンション1K・ペット可《大田区本羽田2丁目》
東京都大田区本羽田2丁目に位置する、
京急空港線「糀谷駅」 最寄で羽田空港へのアクセス良好の築浅賃貸マンション**リヴシティ本羽田**をご紹介します。
築浅・ペット可・ネット無料・広めの1Kで初めての1人暮らしにおすすめです。
羽田空港や航空会社に勤務している方、飛行機や新幹線をよく利用される方におすすめの立地です。
✅おすすめポイント!
築浅物件
2025年3月築で外観内装キレイです。
ペット可
ペットの種類や頭数などはお問い合わせください。
敷金0円
初期費用が抑えられます
ネット無料
毎月かかるインターネットが無料です。動画視聴やテレワーク等に最適!
角部屋の二面採光
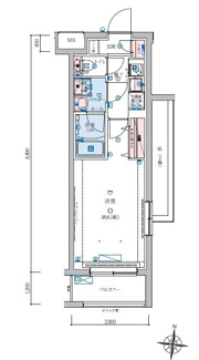
8.3帖の居室にクローゼット、バストイレ別で独立洗面台付きです。
・オートロックに防犯カメラにTVモニタ付インターホンが付いてるので来訪者の顔が確認できて安心です。
・宅配ボックス付きなので、不在時でも荷物の受け取りができて便利です。
・バストイレ別
・独立洗面台
・温水洗浄便座
・浴室乾燥機
・室内洗濯機置場
・エアコン完備
・2口ガスコンロシステムキッチン
・24時間換気システム
・シューズボックス
・クローゼット
・敷地内にゴミ置き場あり
・初期費用クレカ決済OK
✅周辺環境
● 買い物
・マルエツ糀谷駅前店
・業務スーパー本羽田店
・ウエルシア大田萩中店
糀谷駅周辺は商店街もあり、生活利便性良好。
● 医療施設
・高野病院
・羽田おおぞらクリニック
・糀谷駅周辺にクリニック多数
● 公園
・本羽田公園
・萩中公園(大型公園・プール施設あり)
静かな住宅街で落ち着いた住環境です。
✅主要駅へのアクセス
・京急蒲田駅:約3分
・品川駅:約15分
・羽田空港:約10分
・横浜駅:約20分
空港・都心・神奈川方面どちらにもアクセス良好。
✅家賃相場|糀谷エリアの家賃相場(1K)
・築10年前後:8.5万~9.5万円相場内でバランスの良い賃料設定です。
⚠️知っておきたいデメリット・注意点
・最寄駅から徒歩12分
・更新料1.5ヶ月とやや高め
・初回保証料が総賃料80%~と高水準
→ ただし、「築浅・ペット可・広めの1K」が、魅力的な物件です。
こんな方におすすめ!
・築浅物件に住みたい方
・ペットと一緒に暮らしたい
・角部屋がいい
・羽田空港に勤務予定
・航空会社に勤務予定
・宅配ボックスやTVモニタ付インターホン必須の方
・インターネット無料で使いたい方
・京急空港線や京急本線エリアで分譲賃貸マンションを探している方
Q&A(よくある質問)
Q:最寄駅はどこですか?
A:東急池上線「池上駅」です。JR京浜東北線「蒲田駅」も徒歩圏内です。
Q:ペットは飼えますか?
A:相談可です。詳細はお問合せください。
Q: 糀谷駅エリアは住みやすい?
A:商店街・スーパーが充実し、空港・品川方面へのアクセスが良好なため単身者に人気です。
Q: オンライン内見は可能ですか?
A: はい、可能です。遠方にお住まいの方は交通費をかけなくてもお部屋探しができます。
️ #大田区本羽田 築浅 賃貸 #糀谷駅 分譲賃貸マンション #京急空港線 賃貸 #大田区本羽田 1人暮らし #分譲賃貸マンション ペット可
#京急本線 ペット可 #三都市アース戸越銀座店 #賃貸情報 #大田区本羽田 羽田空港 1人暮らし #1K 糀谷駅 #お部屋探し #初めての1人暮らし
遠方にお住まいの方でもオンラインでのご案内やオンラインでのご契約もできるので、交通費などが削減できます。
