中延・戸越銀座・旗の台の賃貸・売買・管理は三都市アース(さんとしアース) > 三都市アース(さんとしアース)のブログ記事一覧 > 賃料7万円以下の賃貸マンション★礼金0円・フリーレント付!

賃料7万円以下の賃貸マンション★礼金0円・フリーレント付!

≪ 前へ|新築★賃貸マンション1LDK★戸越公園駅徒歩5分以内   記事一覧   人気路線!人気エリアの中目黒駅徒歩5分の賃貸マンション1DK|次へ ≫

賃料7万円以下の賃貸マンション★礼金0円・フリーレント付!

カテゴリ:★礼金無し・ゼロ円★



【エスタディオN










初期費用や毎月の賃料を安く抑えたい方におすすめです!


礼金0円


フリーレント(賃料無料)1ヶ月付




賃貸マンション



一人暮し向けのワンルームなので、学生さんや新社会人の方、東京に就職や進学予定をされている方におすすめです!



東京都世田谷区等々力4丁目4-2




設備充実・最上階

4階でオートロック付き、宅配ボックス付きなので、不在時でも荷物の受取りができて便利です。



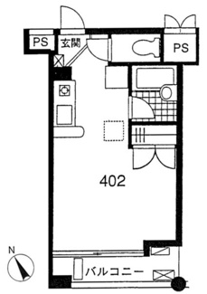
バストイレ別で洗濯機置場は室内、エアコン付き、フローリングです。


1口電気コンロのキッチンです!



★現在、空室のため内見・オンライン内見が可能です。




遠方にお住まいの方やお忙しい方にはオンライン相談やオンライン内見が可能です。遠方の方は電話やメール、ライン等のオンラインで対応可能です。


世田谷区エリア周辺の物件探しはこちら

東急大井町線エリア周辺の物件探しはこちら




品川区・世田谷区の賃貸は三都市アース戸越銀座店へお問合せください。





【エスタディオN



【外観】エスタディオN




【展望】エスタディオN



エスタディオN







賃料:6.2万円 

管理費・共費費:3,000

敷金:1ヶ月 

礼金:1ヶ月

間取り:1R

専有面積:19.47㎡ 

築年月:1997年11月


(交通)

東急大井町線

「等々力駅」徒歩3分

「尾山台駅」徒歩6分





★現在、空室のため内見・オンライン内見が可能です。





戸越銀座周辺の賃貸は三都市アース戸越銀座店まで、お気軽にどうぞ♪



ご契約金(初期費用)をクレジットカード決済可能(VISA/マスター/JCB等)です!Tポイントも使えて貯まります♪

★保証人不要制度などお部屋探しや引越しに関する心配な事など、気軽にご相談ください♪



※現況優先となります
※空室状況は変動しますのでご了承ください

★★★お部屋探しはLINEが便利★★★ 

簡単にご登録可能です。お問合せ方法:LINEホーム検索→【三都市アース戸越銀座店】と検索→追加→お客様の【フルネームのみ】メッセージで送信で完了。担当スタッフから改めてごあいさつのお返事をさせて頂きます。

※注意※LINEをご使用の際はプライバシー管理で「Letter Sealing」をオン(☑)にしてご使用ください。
設定方法:ホーム→右上の歯車→プライバシー管理→Letter Sealing

★オンライン相談やオンライン内見、オンライン契約(IT重説)などの対応も実施しております。お手元にスマホやタブレット、パソコンといった機器とインターネット環境があれば、専用アプリやライン等で気軽にできます。

遠方にお住まいの方や近くにお住まいの方でも外出が不安だったり、困難な方は来店しなくてもお部屋探しが可能です。インターネット環境が無い方はお電話でも可能です。

お気軽に電話、メール、ライン等でご相談ください。

【営業時間】
平日:10時30分~19時30分
土日祝祭日:10時~19時30分




【三都市アースが電子書籍の『マドリーム』に紹介されました】










【お部屋探しのご依頼承ります】

お部屋探し、お引越しを予定されている方で、ご来店が困難な方は、三都市アースのスタッフにご依頼ください。


ご希望されるお部屋の条件「エリアや沿線、賃料、間取り、人数、ペット飼育、その他オートロック等の設備」を電話、メール、ファックス、LINEなどでお知らせください。お客様のご希望に合う部屋を探し、写真や間取り、図面、動画などを送付してご案内します。


オンライン内見や接客・相談も対応可能です。リアルタイムでお部屋をご紹介できます。








★各店の連絡方法★
店舗紹介ページをご確認ください。




 

★三都市アースでは「IT重説」を実施★

契約時にご来店いただかず、スマートフォン(スマホ)やパソコン等のインターネットでテレビ電話のをご利用いただける環境であれば、「IT重説」も実施しております。※物件によっては対応できないご契約もございますのでご了承ください。

詳しくは気軽にお問合せください。







日経新聞に三都市アースが「IT重説」の取材を受けた記事が掲載されました
⇒⇒⇒⇒⇒⇒⇒⇒⇒日本経済新聞





≪ 前へ|新築★賃貸マンション1LDK★戸越公園駅徒歩5分以内   記事一覧   人気路線!人気エリアの中目黒駅徒歩5分の賃貸マンション1DK|次へ ≫

最新記事

おすすめ記事

カテゴリ

>>全ての記事を見る

XMLRSS2.0

  • お問い合わせ
  • スタッフ紹介
  • 品川周辺施設検索
  • アクセスマップ
  • 会社概要
  • クレジットカード決済
  • Vポイントキャンペーン
  • 公共交通機関連絡先
  • 引越し見積もり
  • 中延商店街
  • 戸越銀座
  • 武蔵小山商店街パルム
  • 旗の台東口通り商店街
  • QRコード
  • 店舗地図
  • 三都市アース本店
  • 三都市アース中延店
  • 三都市アース戸越銀座店
  • 三都市アース旗の台店
  • 不動産総合ポータルサイトいえらぶ参加中

山下  哲也  最新記事



山下  哲也 

品川区・大田区で物件紹介12年以上! お部屋の良いところから悪いところまでしっかりと説明致します! 難しい条件や言いにくい事でもなんでもご相談下さい! 一緒に楽しくお部屋をお探し致します!!!

スタッフ情報を見る

 おすすめ物件


Jタワー西大井ウェストコート

Jタワー西大井ウェストコートの画像

賃料
30万円
種別
マンション
住所
東京都品川区西大井1丁目1-1
交通
西大井駅
徒歩1分

ORSUS戸越銀座

ORSUS戸越銀座の画像

賃料
18万円
種別
マンション
住所
東京都品川区荏原2丁目3-1
交通
戸越銀座駅
徒歩5分

西馬込テラスコート

西馬込テラスコートの画像

賃料
23.5万円
種別
マンション
住所
東京都大田区西馬込2丁目5-2
交通
西馬込駅
徒歩3分

プラティーク代々木上原ウエスト

プラティーク代々木上原ウエストの画像

賃料
22.2万円
種別
マンション
住所
東京都世田谷区北沢5丁目23-10
交通
笹塚駅
徒歩9分

トップへ戻る

来店予約

LINEでかんたんお問い合わせ